HOW TO BUILD A STRONG HOME IN RURAL BANGLADESH.
It is said that the Chinese contractors build every floor of a skyscraper in just eighteen days. The reason they are able to master such extraordinary feat is because of proper design and project planning before the first brick is laid. This is a simple village home, but to achieve rapid construction and low-cost housing goals, we designed every single element and planned every single detail like a Chinese sky scrapper builder.
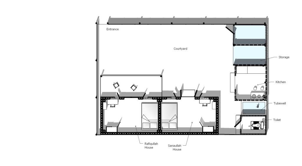
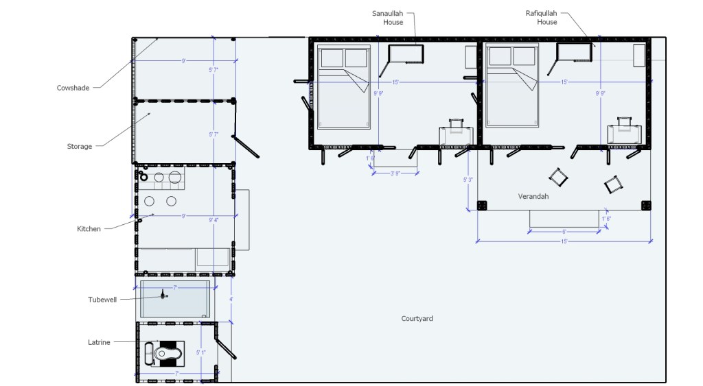
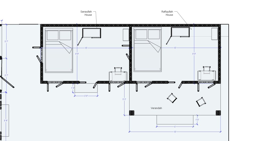
After just eight weeks of work, we successfully managed ‘low-cost housing’ in the truest sense of words. Sanaullah Miah is a Rickshawala from Kurigram. He had a one-room house built with tin. Sanaullah lived with his son and his family. For six residents’, it was cold during winter and oven hot during summer. There was no courtyard, proper kitchen, or usable toilet. Sanaullah owned only three decimals of land (1288sq ft, 119.7 sq. mtrs). We raised four lac taka (4,000 euro). With that, we managed to build two houses, a toilet, kitchen, wash area with tubewell, cow shade, storage, and still managed to keep a nice courtyard.
Rural housing in Bangladesh is deceptively simple. Looking critically, It is complex in its functionality. At Bangla Bari, we have embarked on a design, that thought about every facet of Rural architecture. From installing বন্ধু চুলা that produces fewer fumes to cross ventilation of homes to the privacy of a toilet to providing a proper courtyard… every single part of this design was planned and executed with precision.
SANAULLAH HOME
Location: 25°48’34.09″N 89°30’47.49″E
Map: https://goo.gl/maps/iazi2xhxVdydeuGM8

Client: Mohammad Sanaullah and Mohammad Rafiqullah.
Funding provided by: Ishtiaq Chisti, Aisu Chisti, Fawaz Rob,
Painting Sponsor: Berger Paints Ltd.
ARCHITECTURAL DETAILS:
Chief architect: Fawaz Rob
Project coordinator: Bangla Bari Ltd. (www.banglabari.org)
Site Supervisor: Apu Chandra Roy
Chief mason: Bikash Roy, Shordar Roy
Raj mistiri: Mohammad Rafiq
Assistant: Monoj
Roof construction: Konok Roy
Documenter: Shakil
Day labors: Rafiqullah and his friends and family.

WHY IS THIS HOUSE SPECIAL?
THE IMPORTANCE OF DESIGN:
Every single element was meticulously designed to reach maximum efficiency during construction. To achieve the same efficiency as Chinese sky scrapper builders, we had to train the workers before we laid the first brick. This was a steep learning curve, but they managed. Cement hollow block was used instead of bricks and everything was designed in advance to reduce the lag time. Sketchup was used to design and realize the entire thing.
1. Introducing “cement-earth hybrid block” to get higher insulation. This ensures warm indoors during winter and chilled indoors during hot summer. We poured liquid earth inside the hollow cement blocks, raising the insulation by 30% and thus making it a comfortable house.
2. A well-designed stove “Bondhu Chula” was installed in the kitchen to get 30% more heat efficiency. The smoke is transported outside to have a pleasant experience in the kitchen.
3. Cement sheets for roof construction to get higher insulation. The roof structure was designed in such a way that storage units could be added later.
4. Low-cost doors and windows were made with bamboo fillers. It gave the doors a very aesthetically pleasing look while reducing the overall cost.
5. A shared wall for the toilet, but keeping it separate from the main house.
6. Using Eucalyptus wood for verandah columns.
7. Using stabilized rubble to reduce the cost of ground filler.
8. The indoor electric wiring was designed beforehand and the wiring was inserted through pipes inside the wall.
9. The kitchen was designed with better ventilation and storage capacity.
10. Instead of conventional RCC columns and beams, a new way of construction method was used. 10mm rods were inserted vertically every 2 meters and horizontally two parallel rods were laid all around the walls at 1 meter and 2 meters height. The crossbracing of rods makes the walls extremely strong and makes the house earthquake-proof.
THE IMPORTANCE OF DESIGN:






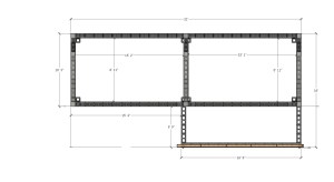
Here are some images of the design. Not everything made it to the final construction. Some elements were altered at the request of the client.
A Rickshaw Puller’s Story: Living to the Ripe Old Age and the Environment
By Ishtiaq Chisti
The poverty rate of Bangladesh is 20%. Civil Society and the Government have not been able to adequately help these folks rise above subsistence living. I posit a significant portion of the ultra-poor are ricksha wallas, with three million of them in Dhaka City alone[1]. It is a clean mode of transportation in the country but the pullers themselves are victims of urban pollution exacerbated by the weather (rain and heat) in tropical Bangladesh.
They also live in conditions that add to their misery. They cook in stoves that burn coal, wood, dung, and crop residues causing serious lung damage and even early death. According to one study, 18,000 people die from inhaling smoke from these stoves[2]. In small towns of Bangladesh when people rise up in income levels they build homes from materials that are not environmentally sustainable. Bricks made in kilns that are a major cause of greenhouse gas in Bangladesh is the preferred building block.
Sona Ullah, who has spent 45 years of his life peddling rickshaw in different parts of the country, now toils hard controlling traffic at Rajarhat Upazila town in Kurigram from morning till evening. Sona Ullah, now 73, has been working on the road as a volunteer traffic controller for the last seven years. A resident of Putikata, Mallirapar village of Rajarhat Union he has been working alongside the traffic police voluntarily.
I came to learn about Sona Ullah from an inspiring piece I read in Daily Star[3]. So, I did two things to help Sona Ullah and his family. Took an initiative to raise money to build a home for the poor old ricksha walla and his family. Thanks to generous support from my friends all over the world, corporate support from Berger Paints, and complete strangers I was able to raise enough money and resources to build a sustainable home. The second thing I did was convince my nephew Fawaz Rob to design and build a low-cost home for the family. His firm Bangla Bari built the house (actually a compound) for two families with a kitchen equipped with a smokeless stove. The building materials he used are also more sustainable and environmentally friendly. Fawaz Rob didn’t take a penny to design and led the construction. He also donated generously with money and framed etchings which we gave to the major donors as a reward. Fawaz Rob personally traveled at his own expense to the site to supervise and start the construction work. You can read his story from the source and many publications[4].
This has been a project of love for Fawaz Rob and myself and all the donors who supported our efforts. The larger problem of poverty alleviation and improving the environment to keep our planet fit for healthy living are challenges that continue to need attention of Civil Society and Government.
| Donors 1 Abir Karim Chisti 2 Adil Rashid 3 Aflak Chowdhury 4 Alif Laila 5 Bakhtiar Shahjahan Hafeez 6 Berger Paints BD (Rupali Chowdhury) 7 Charmane Rashid Ahmed 8 Choton Haque 9 Delshad Rahman & Sabah 13 Disha Kibria 14 Duke Hassan/Mishti 15 Eshita Sabrina Tabassum 16 Eva Siddique 17 Fahmida Musa 18 Farooq Amin 19 Fawaz Rob 20 Gray Garenz 21 Iffat Karim (Aisu) 22 Ijaz Hossain 23 Ikram Haque (Romel) 24 Ishrat Nasirullah 25 Ishtiaq A Chisti 26 Izadur Rahman 27 Jean Young 28 Jhuma Sen 29 Jolly – Mahmuda Hossain 30 Jomo Mohiuddin 31 Karishma Huda 32 Mamun Khairul Omar Hassan 33 Mo Iqbal | 34 Moe Abed (Nipu) 35 Mohammed Rahman (Dipu) 36 Muhit Rahman 37 Mustafa Hasan Shamim 38 Naeela Sattar 39 Najma Absar 40 Najma Bashar 41 Nancy Ali 42 Nasrin Rahman (Hilli) 43 Nassu Salam 44 Nizam Aulia 45 Rafat Talukder 46 Rafiq Ahmed 47 Rasel Asaduzzaman 48 Rezaul Matin 49 Riaz Quadir 50 Ribon Chowdhury 51 Robin Khundkar 52 Sakib Mahmud 53 Samina Alam Reese 54 Shah Naz 55 Shahed Hasnat 56 Shahnaz Huda 57 Shanaz Yousuf 58 Sharmin Sayeed 59 Shenaz Farooq 60 Shoaib Hasnat 61 Shuvro Khan 62 Taslima Rahman Mili 63 Waziuddin Chowdhury 64 Zahedul Mahmud Zami 65 Zakia Meraj (Monty) 66 Zia Shawan |
[1] https://en.banglapedia.org/index.php/Rickshaw
[2][2] https://www.thedailystar.net/environment/pollution/air-pollution/news/cooking-stove-the-killer-2918456
[3] https://www.thedailystar.net/news/bangladesh/news/73-year-old-volunteers-traffic-control-kurigram-survival-2149801?fbclid=IwAR1QWGbBKeXqxlpf3dfIjPKmAVoVhbRvgot5dYNfgzeR1bC62kyW84SkQOA
[4] https://www.tbsnews.net/features/habitat/bangla-bari-building-sustainable-structures-our-rural-bangladesh-339880
New posts in your inbox

WHY CONSTRUCT WITH CONCRETE BLOCK?
We first got interested in cement block watching a video of Architect Mustapha Khalid Palash. Palash Bhai ardently appealed to the architects to use cement blocks. The truth is Cement is not 100% environment-friendly. There are significant carbon emissions to produce cement. However, in the Bangladeshi context, it is far better than bricks. Kiln-fired bricks are the worst pollutant. Brick fields produce more pollution than any other industry. Moreover, they destroy the topsoil rapidly. Without relying on perceptions, I have checked internationally published journals. Fortunately, the researchers have methodically proved that a concrete block is more environmentally friendly than kiln-fired bricks. The best alternative of Kiln-fired brick would be compressed earth blocks (CEB). However, we tried to promote earth blocks for years without much success. It is not always about technical achievement. The aspirations of rural people is different. It seemed they could care less about the environment or aesthetics. They want stability and strength. They want a house that can survive ten monsoons.
Concrete block construction has a sharp learning curve. There are technical issues that need to be mastered. But once these idiosyncratic ways are learned, the construction is super fast, environmentally friendly, and according to major contractors, reduces cost by 30%. We found that ‘rapid construction’ reduces labor costs significantly.
To read the international scientific journal paper that supports the claim that Cement hollow block is more environmentally friendly than kiln-fired bricks, Click here
Also, please read Thermal performance and structural cooling analysis of brick, cement block, and mud concrete block




















































































































unofficial blog of rural construction
Day 2: COMPLETE CHAOS The first week of rural construction is the most exciting, most expensive and most troublesome. Its like launching a space shuttle. You need a hell lot of explosive energy to thrust that rocket, but once it reaches the space, its smooth sailing. Rural construction or any construction for that matter shares similar fate of a rocketship. If there are mistakes during liftoff, There’s a strong chance of crashing.This is one place, democracy does not hold a paramount value. Someone has to be in charge, make decisions and be firm. “Sir, the breaker has arrived, but the bricks didn’t”, ” Sir, there are cracks in the bricks”, “Sir, there’s water coming out when we dig”… Almost endless stream of confusion among workers which one has to handle with strength. The first truck of cement blocks came and they had cracks. Maybe it happened during transportation. The truck labors were tired. They just wanted to unload, the contractor just wanted to start laying blocks and the supplier jusr wanted to get paid. A group of twenty some men wanted to convince me, ” It’s fine”. I smiled and politely said, “No”. This house will have to last for a hundred years. I will not start with cracked block. I revert to the smiling bastard mode. The more these burly men tries to convince me, plead loudly or threaten with sweaty angry face…I give them a fake smile and say ” No”. I need good blocks, else nothing continues i can wait. It was getting late. I ordered lunch and drinks for everyone. We all eat and calm down. They take the blocks back to the factory and agrees to bring back good ones. One of the great joy of the day was to teach the kids about architecture and about drone videos. They loved to see how to build something virtually on the computer. All kids are brilliant. If you can have fun with them, they open the doors of their mind and learn new things. I have had so many bad teachers in life. They tried teaching by threatening, punishment and fear. I guess they had insecurities. We did our homework with fear, but never learned anything, never remembered anything. The ignition is on, rocket is thrusting explotion, base has been dug, concrete is getting poured, rocket is lifting…boom boom boom.

Images of completed project:













































